Høringsuttalelse Skansen næringspark (Ringveien 2)

Publisert av Vidar Havellen den 26.10.20.

Saksdokumentene ligger på https://www.lier.kommune.no/kunngjoringer/kunngjoring-av-planer/reguleringsplaner/horingoffentlig-ettersyn-av-planforslag/detaljregulering-for-skansen-naringspark/

 

Høringsuttalelse fra Hennummarka vel

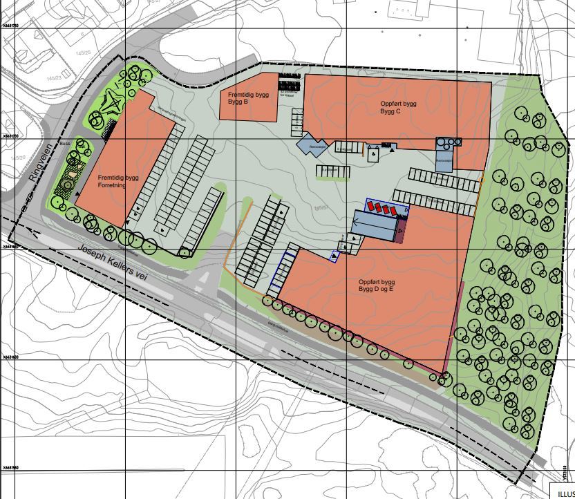
Detaljregulering Skansen næringspark

Etablering av dagligvarebutikk

Hennummarka vel takker for muligheten til å avgi en uttalelse. Vellets formål er å arbeide for gode bo- og oppvekstvilkår. Vårt boligområde skal oppleves som trygt. Trafikk, næringsvirksomhet og arealer avsatt til offentlige formål må ikke forringe bo- og livskvalitet men heller underbygge etablering av et helhet og balanser nærmiljø.

Vellet vil anføre følgende:

 

Behovet for en dagligvarebutikk nær Tranby øst/nord:

Vi registrerer at befolkningen er delt i dette spørsmålet. Vellet mener at fordelene med en nærbutikk for dagligvarer (maks 1500 m2) er større enn ulempene. Tilgjengeligheten til dagligvarer blir bedre, muligheten for innkjøp uten bruk av bil blir større og en unngår lengre reiser for denne type innkjøp. I et nærmiljøperspektiv er redusert trafikk i området positivt. Dagens (nær)butikk ved Tranby Torg ligger tett på skole, bibliotek, og andre tilbud rettet mot barn og unge og har felles trafikkløsning for noen av disse. Det er positivt om belastningen i dette området kan reduseres.

 

Sikker tilgang for myke trafikanter:

Det er foreslått at tilgang til butikken for myke trafikanter skjer ved inngang via vegetasjonsbeltet langs Ringveien. Hensynssonen opparbeides som park med leke/aktivitetsapparater. Det er ment at dette området skal oppleves attraktivt for barn og unge. Alle som benytter denne inngangen må krysse Ringveien.

Velle mener at denne krysningen må sikres godt. Det må opparbeides belyst gangfelt og fartsreduserende tiltak, lik  de som er bygget i Joseph Kellers vei. Buss 71 stopper i Ringveien der inngangen til butikken er planlagt. Dette er risikoøkende fordi det kan generere forbikjøring av bussen som hindrer sikten av myke kryssende trafikanter. Vellet mener av den grunn at det bør opparbeides et busstopp utenfor kjørebanen. I vedlagte risikovurdering er dette ikke vurdert.

 

Byggehøyder og utforming:

Vellet ser positivt på at butikkbygget oppføres med høyder lavere enn det som er tillatt for den øvrige bebyggelsen på tomten. Vi ønsker en utforming som visuelt er attraktiv sett fra boligområdet, og som passer godt inn på tomten og fremstår som en integrert del av næringseiendommen. Det er viktig å unngå lysforurensning.

 

Tomten som samspiller til rekreasjon og kulturvern:

Vellet er godt fornøyd med identiteten knyttet opp mot de unike historiske hendelsene på Gjellebekk og Kongeveien. Fra butikken er det gåavstand til dette viktige området. Vi vil derfor foreslå at det tillates satt opp, som en naturlig del av parkeringsområdet og parkanlegget/vegetasjonssonen, et informasjonsskilt om det historiske området og veibeskrivelse til det. Samtidig som det tilrettelegges for parkering for de som vil gå inn til Gjellebekk/høgda på søndager eller andre dager butikken holdes stengt.

Støy

Butikker har noen støyende installasjoner knyttet til kjøleanlegg og ventilasjonsanlegg. Det er viktig at dette plasseres slik at støykilder vender bort fra naboene i Larsehagan som ligger tett på butikken. Støykilder må plasseres på den siden av bygget som vender bort fra Ringveien. Vi ber om at dette tas med i §2-2 Rekkefølgekrav.

 

På vegne av Hennummarka Vel

Styret

V/Einar Kindberg