Julegrantenning
15.11.20 01:00
av Vidar Havellen
Julegrana tennes i år igjen - men uten noe arrangement.
15.11.20 01:00
av Vidar Havellen
Julegrana tennes i år igjen - men uten noe arrangement.
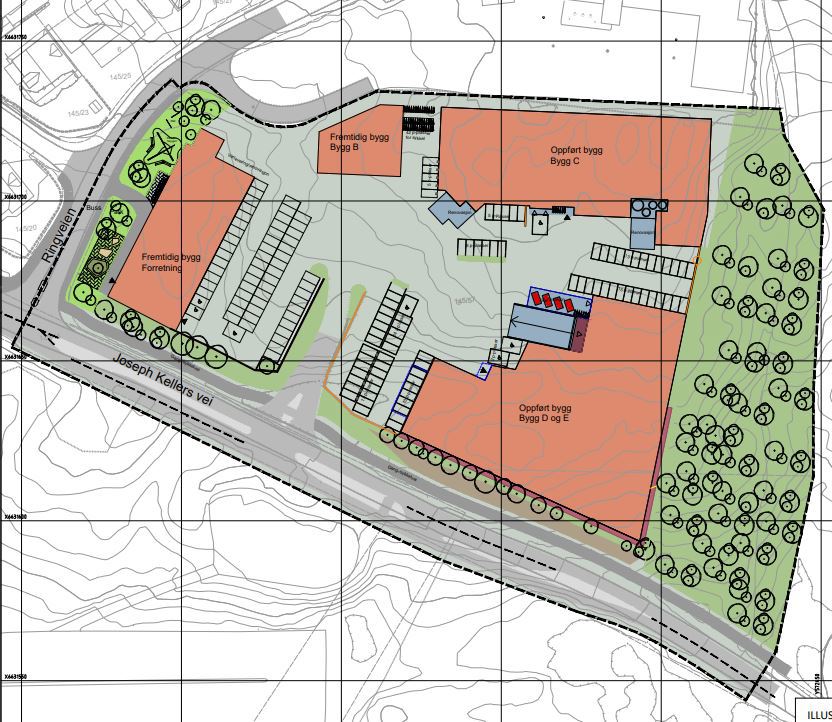
26.10.20 01:00
av Vidar Havellen
Vellet har sendt inn høringsuttalelse ifm med detaljregulering Skansen næringspark og ny dagligvarebutikk.
02.07.20 02:00
av Vidar Havellen
Holtefjell eiendom har lagt fram planer for nærbutikk i Ringveien 2. Det legges opp til et parkaktig område mot Ringveien 2 med inngang fra Ringveien for gående og syklende. All innkjøring med bil via felles innkjøring som er etablert. Arealene må omreguleres og søknad om dette vil bli sendt etter ferien.
21.01.20 01:00
av Vidar Havellen
Franzefoss har fått konsesjon for videre pukkverksdrift. Direktoratet for mineralforvaltning har forlenget konsesjonen.
19.11.19 01:00
av Vidar Havellen
Er du interessert i å påvirke og bidra i utviklingen av Hennummarka og nabolaget ditt? En glimrende mulighet er å være med i styret i Hennummarka Vel!
15.03.19 01:00
av Vidar Havellen
Hennummarka Vel jobber med flere prosjekter tilknyttet rekreasjon og friluftsliv i nærområde. Et av disse er Hundeparken som vi har fått godkjent for etablering ved Ringveien. Hennummarka Hundepark har nå fått egen facebook-side, besøk den gjerne på https://www.facebook.com/HennummarkaHundepark/
15.03.19 01:00
av Vidar Havellen
Vi har mottatt varsel om oppstart av anleggsarbeider, se vedlegg
27.02.19 01:00
av Vidar Havellen
To stykker fra styret har vært host Holtefjell eiendom og fått presentert planene for Ringveien 2-tomta. Det vil starte opp grunnarbeider ganske snart, og innen året er omme er det på plass et nytt bakeri for Nærbakst AS med 140 arbeidsplasser (som kommer fra Oslo)
19.01.19 01:00
av Vidar Havellen
Lier kommune har nettopp startet hugst på kommunens skog mellom Ringveien og pukkverket. Vi er noe kritisk til dette all den tid det ikke er gjort vurderinger hva dette betyr for støy fra pukkverksdriften. I tillegg vil ytterligere av nærskogen være utilgjengelig i lang tid fremover.
16.12.18 01:00
av Vidar Havellen
Trygve Sundt har gjort en glimrende jobb og laget en høringsuttalelse på vegne av vellet.
01.12.18 01:00
av Vidar Havellen
På generalforsamlingen 7. november 2018 ble nytt styre i vellet valgt.
08.11.18 01:00
av Vidar Havellen
Bli medlem i Hennummarka Vel
14.10.18 02:00
av Vidar Havellen
Utdeling av midler
03.10.18 02:00
av Vidar Havellen
Årsmøte i Hennummarka vel Onsdag 7 november kl 18.30 på Lier IL klubbhus
08.05.18 02:00
av Vidar Havellen
NY hjemmeside for Hennummarka vel